社子江宅
大多數的業主追求日式的輕盈留白,但對社子江宅這對夫妻來說,那樣的清新似乎顯得有些單薄。女主人是一位心思縝密的培訓教師,男主人則是斜槓YouTuber的軟體工程師。他們在設計之初就給了我們一個有趣的挑戰:「不要侘寂!不要很清新的那種日式感!我們要的是一種穩得住生活的份量。」
1.異材質的壓艙石:特殊塗料與木質的對話
為了回應屋主那份不落俗套的性格,我們試著在溫潤的木色中,找尋能與之抗衡的質地。
*低調的叛逆:避開了純白牆面,在玄關、中島與客浴等視覺轉折點,點綴了灰色系的特殊塗料。
*手感的溫度:這些帶著微粗獷紋理的灰,像是空間裡的壓艙石,不僅調和了木皮的明度,更讓整體視覺散發出一種沉穩、內斂的大人味。
2.動線的叛逆期:解構「三分離」的既定印象
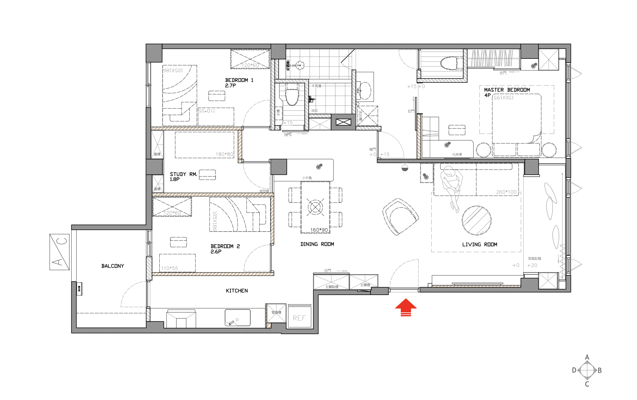
因為女主人有帶學生進家授課的需求,「衛浴」成了公私領域交界處最關鍵的考驗。
*管路的重新思考:這可能是此案最反常規的設計。業主希望從客廳進入主臥前,會先經過洗手台與衛浴區,讓這塊空間能同時服務客人,卻又不侵犯臥室的絕對私密。
*靜謐的黑系洗禮:不同於公領域的木質調,衛浴空間以暗色系為主軸。這種色彩的跳躍,讓每一次洗手、如廁都像是一場與外界喧囂斷開的仪式。
3.視線的留白:那道跨越空間的玻璃窗
男主人的書房不只是工作室,更是一間乘載創作靈魂的錄音室~但空間的界線不該是封閉的牆!
*視覺的流動感:我們在書房與主臥室分別開了一道面向客廳的玻璃窗,打破了小坪數房間的壓迫感。
*最溫柔的注視:這道窗讓視覺有了流動的餘裕,當男主人專注於創作或休憩時,只要一抬頭,就能透過玻璃窗看見客廳裡小嬰兒的一舉一動。
4.光影的餘韻:在窗邊,找回生活的節奏
在採光最豐沛的窗邊,我們以日式臥榻收尾。
*木百葉間的日常:光線穿過木百葉,在榻榻米上留下了規律的影。這裡是女主人的教學場域,也是全家人的放鬆角落。
*重量感的終點:這種帶有厚度的日式底蘊,正是我們與屋主共同定義出的生活樣貌——不需刻意輕盈,因為真實的生活本身就有重量。
風格不該是框架,而是屋主靈魂的延伸

































